Moorgate, York, YO24 4HR
Offers In Excess Of £475,000
*** VIEWING RECOMMENDED *** A most attractive SEMI-DETACHED PROPERTY situated in a convenient location between Holgate and Acomb village and within easy reach of York city centre.
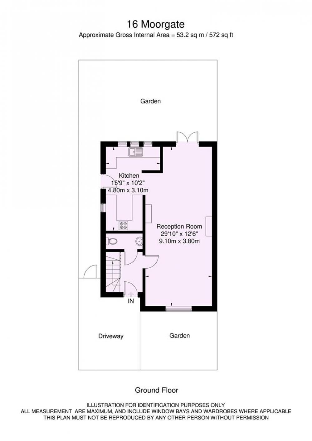
The house is beautifully presented and offers spacious semi-open plan living accommodation on the ground floor with three good sized double bedrooms and attractive enclosed gardens.
This beautiful semi detached home is immaculately presented throughout. Offering fantastic kerb appeal, spacious living accommodation, three double bedrooms and a private enclosed garden
Located in the highly sought after area of Acomb, lying to the West of York. It is conveniently positioned to provide easy access to York city centre and lies within walking distance of Acomb front street; a vibrant area of shops, and much acclaimed independent bakeries and cafés. The area is ideal for commuters being within easy reach of the A64 and railway station and lies within the catchment of several good schools.
The internal accommodation offers a bright and spacious living through dining room with log burning stove and double doors opening onto the patio and garden. From the dining area the property flows through seamlessly to the contemporary kitchen featuring beautiful herringbone style flooring, integral oven and space for a dishwasher and washing machine.
To the first floor there are three well proportioned double bedrooms and the stylish family bathroom with shower over bath
The garden is of good size and boasts an allotment area, summerhouse with electric and fully insulated as well as mature planted borders.
GENERAL REMARKS
VIEWING
All viewing is strictly by prior appointment with the sole selling agents, Hudson Moody. Please contact our offices at 58, Micklegate, York, YO1 6LF.
FIXTURES AND FITTINGS
All fixtures and fittings are specifically excluded from the sale unless they are mentioned in the particulars of sale.
LOCATION
The house lies is a convenient area with local shops available within Acomb village or small shops nearby. The house lies within easy reach of York city centre and railway station.
SERVICES
Mains supplies of water, electricity and drainage. Gas fired central heating.
LOCAL AUTHORITY YORK
City of York Council, West Offices, Station Rise, York, YO1 6GA. Telephone 01904 551550.
OFFER PROCEDURE
Before contacting a Building Society, Bank or Solicitor you should make your offer to the office dealing with the sale, as any delay may result in the sale being agreed to another purchaser, thus incurring unnecessary costs. Under the Estate Agency Act 1991, you will be required to provide us with financial information in order to verify your position, before we can recommend your offer to the vendor. We will also require proof of identification in order to adhere to Money Laundering Regulations.
Loading... Please wait.
Loading... Please wait.