Moss Street, York City Centre, YO23 1BR
Guide Price £400,000
A beautifully presented and surprisingly spacious four bedroom terraced house situated just off Blossom Street, within easy reach of the railway station, independent cafe's and restaurants on Micklegate, Bishopthorpe Road and the city centre.
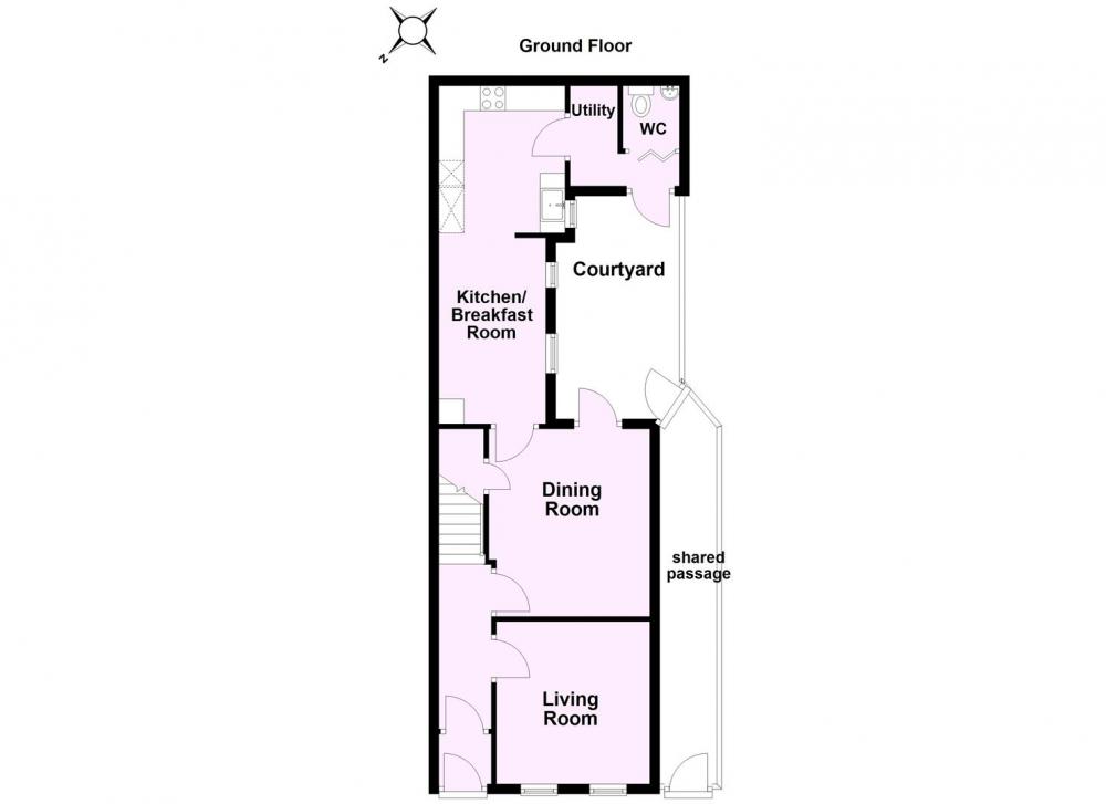
A door from the street takes you into a vestibule before entering the reception hall that gives access to the two living rooms. A cosy sitting room with two windows overlooking the street lies to the front, whilst a separate dining room or second sitting room lies to the rear with a glazed door leading into the courtyard garden. Beyond here is an extended dining kitchen with ample space for a large table before you enter the impressive modern kitchen area with an excellent range of units including eye level ovens, Qooker tap space for an American style fridge/freezer and a gas hob with extractor hood. To the side of the kitchen is a separate utility area and ground floor WC.
The first floor comprises a generous master bedroom with fitted cupboards, a second double bedroom, house bathroom and a single bedroom or office. Stairs lead to the the second floor where you'll find a further double bedroom, currently used as a dressing room.
To the rear of the house you will find an attractive flagged courtyard garden, ideal for alfresco dining and a welcome outdoor space. A gate and shared passage returns to the front where on-street permit parking is available.
GENERAL REMARKS
VIEWING MICKLEGATE
All viewing is strictly by prior appointment with the sole selling agents, Hudson Moody. Please contact our offices at 58, Micklegate, York, YO1 6LF. Telephone (01904) 650 650.
FIXTURES AND FITTINGS
All fixtures and fittings are specifically excluded from the sale unless they are mentioned in the particulars of sale.
LOCATION
The house is ideally situated for easy access into York city centre, railway station and a number of local shops, pubs and other amenities.
SERVICES
Mains supplies of water, electricity and drainage. Gas fired central heating.
LOCAL AUTHORITY YORK
City of York Council, West Offices, Station Rise, York, YO1 6GA. Telephone 01904 551550.
OFFER PROCEDURE
Before contacting a Building Society, Bank or Solicitor you should make your offer to the office dealing with the sale, as any delay may result in the sale being agreed to another purchaser, thus incurring unnecessary costs. Under the Estate Agency Act 1991, you will be required to provide us with financial information in order to verify your position, before we can recommend your offer to the vendor. We will also require proof of identification in order to adhere to Money Laundering Regulations.
ANTI MONEY LAUNDERING COMPLIANCE
We are legally required to conduct Anti-Money Laundering (AML) checks on all purchasers and sellers. These checks become mandatory once a seller accepts an offer on a property (subject to contract).
AML checks are valid for six months from the date of completion. If your transaction does not proceed and you submit an offer on another property more than six months later, or if your existing AML check is more than six months old at the time of a new offer, you will be required to complete and pay for a new check.
We appoint HIPLA as our compliance partner to carry out these checks on our behalf. Once your offer has been accepted (subject to contract), HIPLA will contact you directly to complete a secure electronic verification process.
A non-refundable fee of £30 + VAT per purchaser is payable for the AML check. This fee must be paid before we can issue the Memorandum of Sale to the solicitors. The fee is non-refundable in all circumstances.
Hudson Moody receives service credits from HIPLA which may be used against other services, in recognition of facilitating the checks and undertaking associated administrative compliance duties.
Loading... Please wait.
Loading... Please wait.