Muncastergate, Heworth, York, YO31 9LA
Guide Price £695,000
Extended and renovated to a high standard throughout, this traditional semi-detached home is ready for its next owners to move straight in. Ideally located just off Malton Road, it offers convenient access to York city centre and the outer ring road.
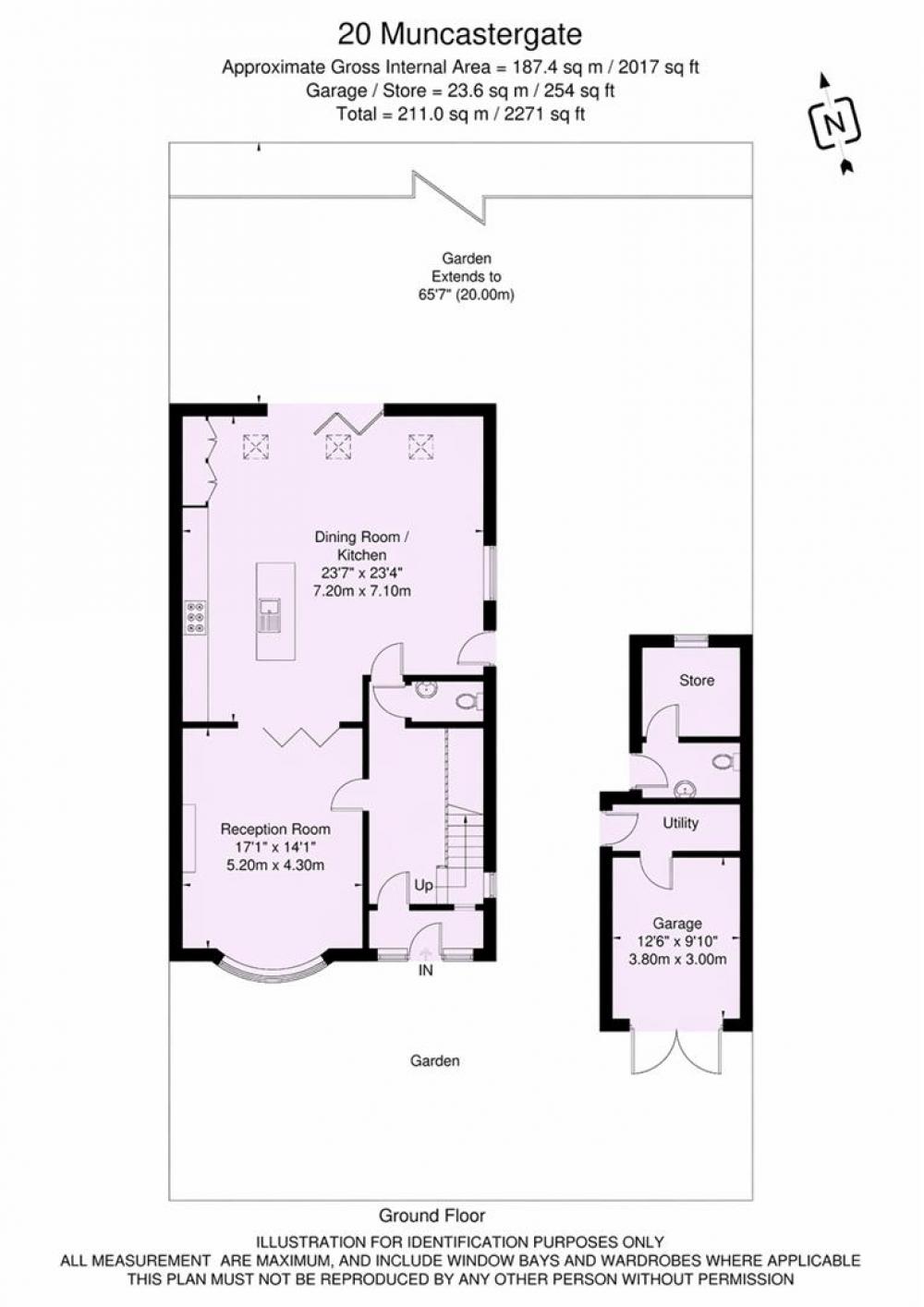
The property provides generous accommodation across three floors, featuring open-plan living, three bedrooms and a family bathroom on the first floor, along with a spacious master suite with en-suite shower on the top floor. Externally, the home sits within well-maintained, landscaped gardens and benefits from an extended garage, now incorporating a utility room, cloakroom, and additional storage space.
The current owners have thoughtfully modernised and extended this home, creating a spacious open-plan kitchen and family area, along with a loft conversion that forms a superb master bedroom complete with an en-suite shower room and dressing area.
An enclosed front garden and parking area lead you to the property, where an enclosed arched porch opens into a welcoming and generously sized reception hall. From here, there is access to a WC and stairs leading to the first floor. The 17ft living room features a wide bay window, laminate wood flooring, and a log burning stove, perfect for cosy evenings. Also accessed from the hall is the impressive extended kitchen and family space, offering ample room for dining and relaxing, finished with herringbone wood flooring. Skylights and bi-fold doors flood the space with natural light and open out onto the rear garden. The kitchen boasts a central island with breakfast bar seating, a large range cooker set within an alcove, and a designated space for an American-style fridge/freezer. Opaque glazed folding doors connect back to the front reception room, making this an ideal layout for entertaining.
Upstairs, the first-floor landing leads to two generous double bedrooms, a single bedroom, and a stylish family bathroom featuring a freestanding bath and separate shower cubicle. Stairs continue to the top floor, where the loft conversion provides a master bedroom with en-suite shower room and additional storage.
Outside, the gardens are beautifully maintained and mainly laid to lawn, complemented by a sun-catching patio area, greenhouse, and mature planted borders. A pathway between the house and garage provides access to a utility room, cloakroom, and additional storage space.
GENERAL REMARKS
VIEWING
All viewing is strictly by prior appointment with the sole selling agents, Hudson Moody. Please contact our offices at 58, Micklegate, York, YO1 6LF.
FIXTURES AND FITTINGS
All fixtures and fittings are specifically excluded from the sale unless they are mentioned in the particulars of sale.
LOCATION
The house is situated in an excellent location being within easy reach of the city centre and good access to Monks Cross and the A64 serving the motorway network.
SERVICES
Mains supplies of water, electricity and drainage. Gas fired central heating.
LOCAL AUTHORITY YORK
City of York Council, West Offices, Station Rise, York, YO1 6GA. Telephone 01904 551550.
OFFER PROCEDURE
Before contacting a Building Society, Bank or Solicitor you should make your offer to the office dealing with the sale, as any delay may result in the sale being agreed to another purchaser, thus incurring unnecessary costs. Under the Estate Agency Act 1991, you will be required to provide us with financial information in order to verify your position, before we can recommend your offer to the vendor. We will also require proof of identification in order to adhere to Money Laundering Regulations.
ANTI MONEY LAUNDERING COMPLIANCE
We are legally required to conduct Anti-Money Laundering (AML) checks on all purchasers and sellers. These checks become mandatory once a seller accepts an offer on a property (subject to contract).
AML checks are valid for six months from the date of completion. If your transaction does not proceed and you submit an offer on another property more than six months later, or if your existing AML check is more than six months old at the time of a new offer, you will be required to complete and pay for a new check.
We appoint HIPLA as our compliance partner to carry out these checks on our behalf. Once your offer has been accepted (subject to contract), HIPLA will contact you directly to complete a secure electronic verification process.
A non-refundable fee of £30 + VAT per purchaser is payable for the AML check. This fee must be paid before we can issue the Memorandum of Sale to the solicitors. The fee is non-refundable in all circumstances.
Hudson Moody receives service credits from HIPLA which may be used against other services, in recognition of facilitating the checks and undertaking associated administrative compliance duties.
Loading... Please wait.
Loading... Please wait.