Pinewood Hill, York, YO10 5HR
Guide Price £375,000
A three bedroom, semi detached home. Situated in the sought after Badger Hill area of York, close to the University of York and within easy reach of York city centre, and the A64
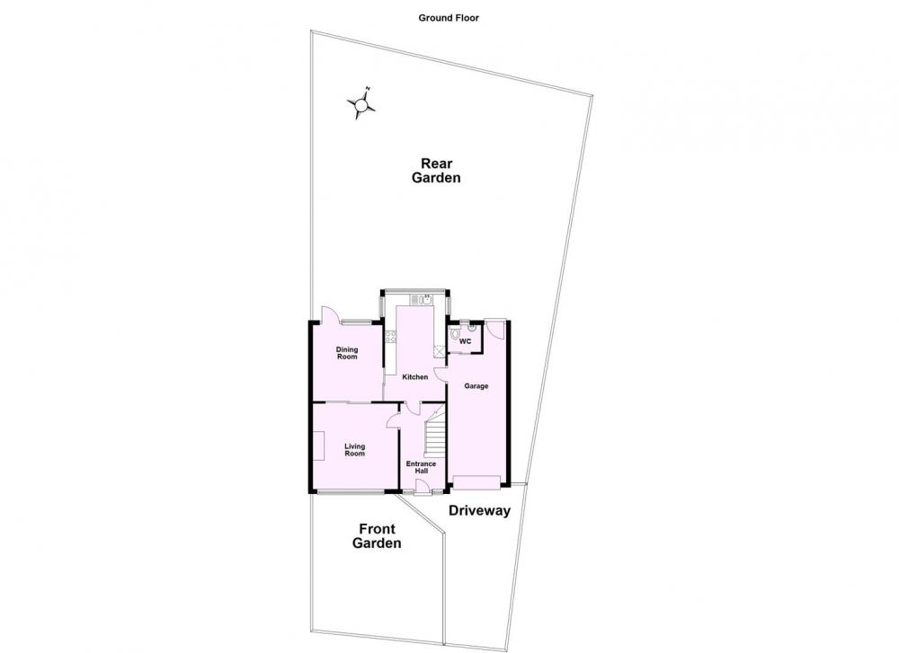
This spacious semi detached home is well presented throughout. Offering three bedrooms, two reception rooms, garage and a large garden. Conveniently offered with no onward chain it would make a fantastic home for a first time buyer or growing family.
Situated in the popular residential area of Badger Hill, lying to the East of York, it is ideally placed for easy access to York University, the city centre, and A64. David Llyod Leisure centre, a park and ride service and well regarded, Archbishop's secondary school are all within easy reach.
The internal accommodation offers a well appointed living room to the front with sliding doors leading through into a separate dining room, which enjoys direct access to the garden. The dining area flows through to the kitchen, which features modern shaker style units, integral oven, hob and space for a washing machine.
To the first floor are three double bedroom and the house shower room.
Externally, there is a generous lawned rear garden which enjoys a private aspect, along with a storage shed and patio. To the front a driveway provides off street parking for two cars, and leads to the attached garage, with separate WC
GENERAL REMARKS
VIEWING MICKLEGATE
All viewing is strictly by prior appointment with the sole selling agents, Hudson Moody. Please contact our offices at 58, Micklegate, York, YO1 6LF.
FIXTURES AND FITTINGS
All fixtures and fittings are specifically excluded from the sale unless they are mentioned in the particulars of sale.
LOCATION
The house is situated a short distance from Hull Road in the Badger Hill area of York. It is conveniently close to The University of York, the city centre and the outer ring road that serves the motorway network.
SERVICES
Mains supplies of water, electricity and drainage. Gas fired central heating.
LOCAL AUTHORITY YORK
City of York Council, West Offices, Station Rise, York, YO1 6GA. Telephone 01904 551550.
OFFER PROCEDURE
Before contacting a Building Society, Bank or Solicitor you should make your offer to the office dealing with the sale, as any delay may result in the sale being agreed to another purchaser, thus incurring unnecessary costs. Under the Estate Agency Act 1991, you will be required to provide us with financial information in order to verify your position, before we can recommend your offer to the vendor. We will also require proof of identification in order to adhere to Money Laundering Regulations.
ANTI MONEY LAUNDERING COMPLIANCE
We are legally required to conduct Anti-Money Laundering (AML) checks on all purchasers and sellers. These checks become mandatory once a seller accepts an offer on a property (subject to contract).
AML checks are valid for six months from the date of completion. If your transaction does not proceed and you submit an offer on another property more than six months later, or if your existing AML check is more than six months old at the time of a new offer, you will be required to complete and pay for a new check.
We appoint HIPLA as our compliance partner to carry out these checks on our behalf. Once your offer has been accepted (subject to contract), HIPLA will contact you directly to complete a secure electronic verification process.
A non-refundable fee of £30 + VAT per purchaser is payable for the AML check. This fee must be paid before we can issue the Memorandum of Sale to the solicitors. The fee is non-refundable in all circumstances.
Hudson Moody receives service credits from HIPLA which may be used against other services, in recognition of facilitating the checks and undertaking associated administrative compliance duties.
Loading... Please wait.
Loading... Please wait.