Poppleton Road, Holgate, York YO26 4UW
Guide Price £280,000
NO ONWARD CHAIN. Situated in the popular Holgate area of York, a beautifully presented two bedroom terraced house, modernised throughout, yet retaining period charm.
A charming, terraced home offering a blend of period and modern features, located in the popular Holgate area of York.
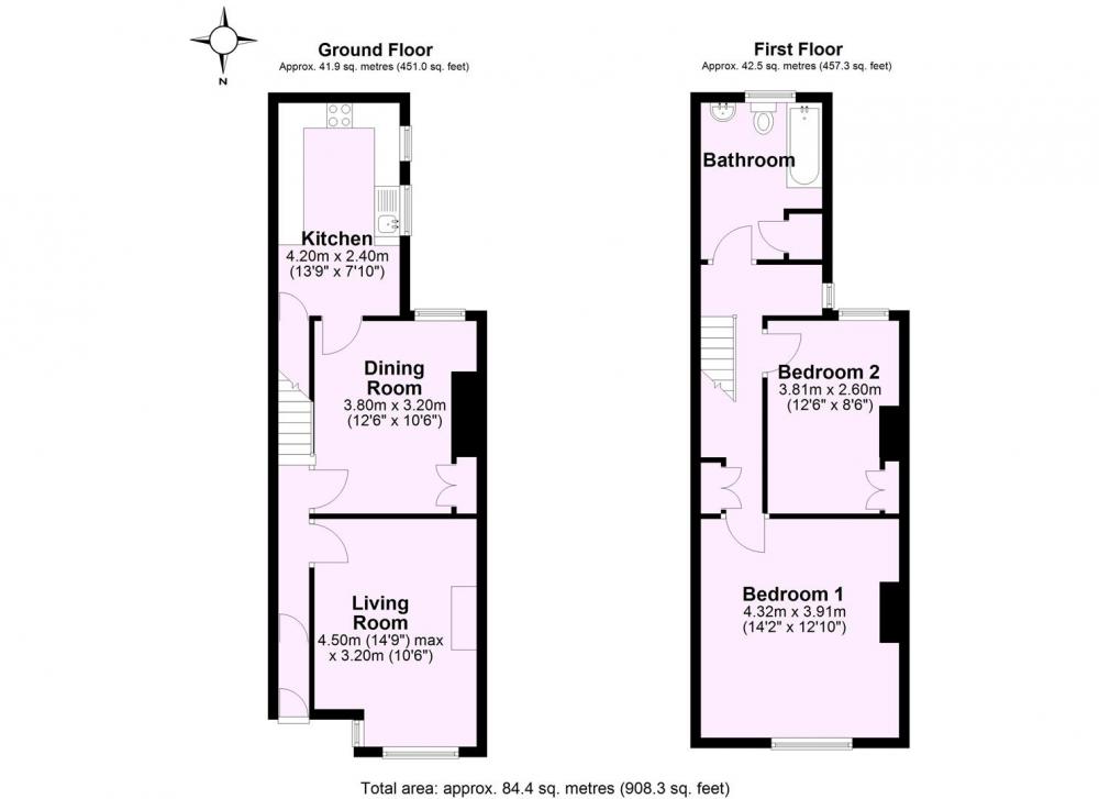
A hallway with mosaic tiled floor gives access to two spacious reception rooms. The living room features timber flooring, a half bay window overlooking the forecourt, and original fireplace with open basket fire, tiled side slips, and matching hearth. A separate dining room features built-in cupboards and offers ample space for a dining table.
The dining room flows through to the modern fitted kitchen at the rear of the property, which includes a range of units, integrated oven with gas hob and extractor, space for under-counter appliances, and access to the rear courtyard.
To the first floor, a galleried landing leads to two well-proportioned double bedrooms and a contemporary bathroom, with shower over bath.
Externally, the property boasts a beautiful walled courtyard garden, featuring a brick store shed, raised beds, and a spacious paved seating area- perfect for outdoor entertaining.
Holgate offers a wealth of local amenities including schools, cafes, shops, pubs and transport links. York City Centre and the Railway Station are within easy reach.
GENERAL REMARKS
VIEWING
All viewing is strictly by prior appointment with the sole selling agents, Hudson Moody. Please contact our offices at 58, Micklegate, York, YO1 6LF.
FIXTURES AND FITTINGS
All fixtures and fittings are specifically excluded from the sale unless they are mentioned in the particulars of sale.
LOCATION
Situated close to local shops and services on Poppleton Road, with a primary school close by, the house offers excellent accommodation for a small family or professional couple. It lies within easy reach of York city centre, railway station and access to the outer ring road that feeds to the motorway network.
SERVICES
Mains supplies of water, electricity and drainage. Gas fired central heating.
LOCAL AUTHORITY YORK
City of York Council, West Offices, Station Rise, York, YO1 6GA. Telephone 01904 551550.
OFFER PROCEDURE
Before contacting a Building Society, Bank or Solicitor you should make your offer to the office dealing with the sale, as any delay may result in the sale being agreed to another purchaser, thus incurring unnecessary costs. Under the Estate Agency Act 1991, you will be required to provide us with financial information in order to verify your position, before we can recommend your offer to the vendor. We will also require proof of identification in order to adhere to Money Laundering Regulations.
ANTI MONEY LAUNDERING COMPLIANCE
We are legally required to conduct Anti-Money Laundering (AML) checks on all purchasers and sellers. These checks become mandatory once a seller accepts an offer on a property (subject to contract).
AML checks are valid for six months from the date of completion. If your transaction does not proceed and you submit an offer on another property more than six months later, or if your existing AML check is more than six months old at the time of a new offer, you will be required to complete and pay for a new check.
We appoint HIPLA as our compliance partner to carry out these checks on our behalf. Once your offer has been accepted (subject to contract), HIPLA will contact you directly to complete a secure electronic verification process.
A non-refundable fee of £30 + VAT per purchaser is payable for the AML check. This fee must be paid before we can issue the Memorandum of Sale to the solicitors. The fee is non-refundable in all circumstances.
Hudson Moody receives service credits from HIPLA which may be used against other services, in recognition of facilitating the checks and undertaking associated administrative compliance duties.
Loading... Please wait.
Loading... Please wait.