Railway Terrace, Holgate, YO24 4BN
Guide Price £280,000
A charming Victorian terrace with original period features, offering delightful views of York Minster from the master bedroom. The sunny south-west facing courtyard garden floods the home with natural light, creating a bright and welcoming atmosphere throughout. Ideally suited to first-time buyers or working professionals, the property enjoys a central and convenient location.
Railway Terrace is one of the most sought-after streets in Holgate, enjoying a peaceful position with a single side road and attractive views over York city and the Minster. The property is ideally located within a short walk of the train station, St Paul’s Primary School, and a range of local shops, cafés and pubs.
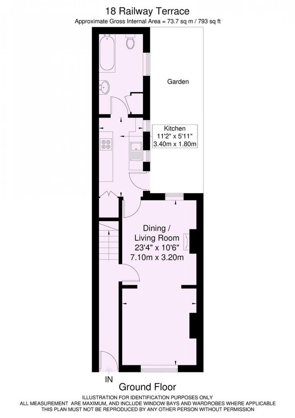
The ground floor opens into a spacious entrance hallway featuring mosaic tiled flooring and ample space for coats and shoes. The hallway provides access to the open plan living dining room, featuring a period fireplace and continues into the fitted kitchen with door leading to the rear courtyard. The house bathroom lies to the rear to complete the ground floor accommodation.
Upstairs, there are two generously sized double bedrooms with the master boasting views of York Minster and they both benefit from Victorian feature fireplaces.
Externally, the property offers a south-west facing rear courtyard with access to the rear service lane, providing both convenience and outdoor space to enjoy.
GENERAL REMARKS
VIEWING MICKLEGATE
All viewing is strictly by prior appointment with the sole selling agents, Hudson Moody. Please contact our offices at 58, Micklegate, York, YO1 6LF. Telephone (01904) 650 650.
FIXTURES AND FITTINGS
All fixtures and fittings are specifically excluded from the sale unless they are mentioned in the particulars of sale.
SERVICES
Mains supplies of water, electricity and drainage. Gas fired central heating.
LOCAL AUTHORITY YORK
City of York Council, West Offices, Station Rise, York, YO1 6GA. Telephone 01904 551550.
OFFER PROCEDURE
Before contacting a Building Society, Bank or Solicitor you should make your offer to the office dealing with the sale, as any delay may result in the sale being agreed to another purchaser, thus incurring unnecessary costs. Under the Estate Agency Act 1991, you will be required to provide us with financial information in order to verify your position, before we can recommend your offer to the vendor. We will also require proof of identification in order to adhere to Money Laundering Regulations.
ANTI MONEY LAUNDERING COMPLIANCE
We are legally required to conduct Anti-Money Laundering (AML) checks on all purchasers and sellers. These checks become mandatory once a seller accepts an offer on a property (subject to contract).
AML checks are valid for six months from the date of completion. If your transaction does not proceed and you submit an offer on another property more than six months later, or if your existing AML check is more than six months old at the time of a new offer, you will be required to complete and pay for a new check.
We appoint HIPLA as our compliance partner to carry out these checks on our behalf. Once your offer has been accepted (subject to contract), HIPLA will contact you directly to complete a secure electronic verification process.
A non-refundable fee of £30 + VAT per purchaser is payable for the AML check. This fee must be paid before we can issue the Memorandum of Sale to the solicitors. The fee is non-refundable in all circumstances.
Hudson Moody receives service credits from HIPLA which may be used against other services, in recognition of facilitating the checks and undertaking associated administrative compliance duties.
Loading... Please wait.
Loading... Please wait.