Railway View, Dringhouses, York YO24 2HS
Guide Price £240,000
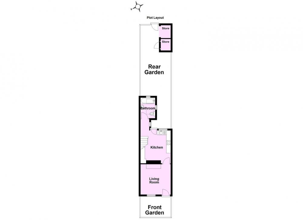
A traditional PERIOD TERRACE with a great sized rear garden, situated in Dringhouses, being within easy reach of York city centre, the A64 and also Hob Moor Nature Reserve.
The house has been beautifully updated for modern living yet retains period features such as Victorian fireplaces in the bedrooms.
The front door welcomes you directly into the living room with a sash window providing good natural light. From here you proceed through to the good sized kitchen with an open staircase to the first floor and an excellent range of fitted units, an integral oven with ceramic hob and extractor hood over, under counter space for white goods and space for a breakfast table. At the foot of the staircase a door takes you through to the modern bathroom with white suite, shower and screen over the bath, two small windows and a skylight providing excellent light.
On the first floor there are two double bedrooms and to the rear of the house is a long gravelled courtyard, ideal for outside entertaining, two useful brick built stores and a gate to the rear service road.
GENERAL REMARKS
VIEWING
All viewing is strictly by prior appointment with the sole selling agents, Hudson Moody. Please contact our offices at 58, Micklegate, York, YO1 6LF.
FIXTURES AND FITTINGS
All fixtures and fittings are specifically excluded from the sale unless they are mentioned in the particulars of sale.
LOCATION
The house lies in a convenient location with good local shops and services together with Dringhouses Primary School and easy access to pleasant walks on Hob Moor
SERVICES
Mains supplies of water, electricity and drainage. Gas fired central heating.
LOCAL AUTHORITY YORK
City of York Council, West Offices, Station Rise, York, YO1 6GA. Telephone 01904 551550.
OFFER PROCEDURE
Before contacting a Building Society, Bank or Solicitor you should make your offer to the office dealing with the sale, as any delay may result in the sale being agreed to another purchaser, thus incurring unnecessary costs. Under the Estate Agency Act 1991, you will be required to provide us with financial information in order to verify your position, before we can recommend your offer to the vendor. We will also require proof of identification in order to adhere to Money Laundering Regulations.
ANTI MONEY LAUNDERING COMPLIANCE
We are legally required to conduct Anti-Money Laundering (AML) checks on all purchasers and sellers. These checks become mandatory once a seller accepts an offer on a property (subject to contract).
AML checks are valid for six months from the date of completion. If your transaction does not proceed and you submit an offer on another property more than six months later, or if your existing AML check is more than six months old at the time of a new offer, you will be required to complete and pay for a new check.
We appoint HIPLA as our compliance partner to carry out these checks on our behalf. Once your offer has been accepted (subject to contract), HIPLA will contact you directly to complete a secure electronic verification process.
A non-refundable fee of £30 + VAT per purchaser is payable for the AML check. This fee must be paid before we can issue the Memorandum of Sale to the solicitors. The fee is non-refundable in all circumstances.
Hudson Moody receives service credits from HIPLA which may be used against other services, in recognition of facilitating the checks and undertaking associated administrative compliance duties.
Loading... Please wait.
Loading... Please wait.