Scarcroft Road, York, YO23 1NF
Guide Price £900,000
A substantial five-bedroom Victorian terrace offering over 2,200 sq ft of versatile accommodation, rich in period character and ideally positioned in one of York’s most sought-after residential locations.
Dating from the late 19th century, the house showcases a wealth of original period features throughout, including ornate cornicing, ceiling roses, sash windows, deep skirting boards, original timber flooring and a series of beautifully preserved Victorian fireplaces, all thoughtfully complemented by tasteful modern decor and high-quality fittings.
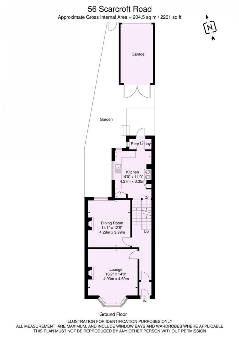
Arranged over four floors and extending to over 2,200 sq ft of accommodation, the internal layout provides exceptional versatility for family living. The ground floor opens via an elegant entrance hallway to two generous reception rooms, each enjoying high ceilings and feature fireplaces. To the rear, the kitchen overlooks the courtyard garden and features shaker-style cabinetry, wooden worktops and an AGA, with direct access to the rear courtyard.
To the first floor are two well-proportioned bedrooms, one of which is currently used as a drawing room with a gas fireplace and fitted shutters, although it would make a superb principal bedroom. This level is served by a well-appointed family bathroom featuring both a traditional roll-top bath and separate shower, together with a separate WC enhanced by a charming stained-glass window.
The second floor provides three further double bedrooms with useful storage and elevated rooftop views, including glimpses of York Minster.
A substantial basement level, currently utilised for storage and utility space, offers clear scope for further development or extension, subject to the necessary consents, presenting an exciting opportunity for buyers seeking additional living accommodation in the future.
Externally, the property benefits from an attractive, walled rear courtyard garden, creating a private and low-maintenance outdoor space. Particularly rare for a property of this style and location, there is also a brick-built garage with rear access, a highly sought-after feature in this central setting.
In summary, this is a fine example of a substantial Victorian townhouse combining elegant architectural character, a wealth of retained period detail and generous proportions. Early viewing is highly recommended to fully appreciate the scale, character and setting of this exceptional home.
VIEWING MICKLEGATE
All viewing is strictly by prior appointment with the sole selling agents, Hudson Moody. Please contact our offices at 58, Micklegate, York, YO1 6LF. Telephone (01904) 650 650.
FIXTURES AND FITTINGS
All fixtures and fittings are specifically excluded from the sale unless they are mentioned in the particulars of sale.
LOCATION
Situated on a highly regarded residential street close to Scarcroft Green and Rowntree Park, the property is within easy walking distance of Bishopthorpe Road’s independent shops and cafés, the city centre and York railway station.
SERVICES
Mains supplies of water, electricity and drainage. Gas fired central heating.
LOCAL AUTHORITY YORK
City of York Council, West Offices, Station Rise, York, YO1 6GA. Telephone 01904 551550.
OFFER PROCEDURE
Before contacting a Building Society, Bank or Solicitor you should make your offer to the office dealing with the sale, as any delay may result in the sale being agreed to another purchaser, thus incurring unnecessary costs. Under the Estate Agency Act 1991, you will be required to provide us with financial information in order to verify your position, before we can recommend your offer to the vendor. We will also require proof of identification in order to adhere to Money Laundering Regulations.
ANTI MONEY LAUNDERING COMPLIANCE
We are legally required to conduct Anti-Money Laundering (AML) checks on all purchasers and sellers. These checks become mandatory once a seller accepts an offer on a property (subject to contract).
AML checks are valid for six months from the date of completion. If your transaction does not proceed and you submit an offer on another property more than six months later, or if your existing AML check is more than six months old at the time of a new offer, you will be required to complete and pay for a new check.
We appoint HIPLA as our compliance partner to carry out these checks on our behalf. Once your offer has been accepted (subject to contract), HIPLA will contact you directly to complete a secure electronic verification process.
A non-refundable fee of £30 + VAT per purchaser is payable for the AML check. This fee must be paid before we can issue the Memorandum of Sale to the solicitors. The fee is non-refundable in all circumstances.
Hudson Moody receives service credits from HIPLA which may be used against other services, in recognition of facilitating the checks and undertaking associated administrative compliance duties.
Loading... Please wait.
Loading... Please wait.