School Lane, Fulford, York, YO10 4LS
Offers In Excess Of £600,000
Situated on a quiet lane in the highly sought-after Fulford Village area of York, this beautifully updated and extended 4/5-bedroom detached house offers spacious, contemporary living with large lawned gardens and open views to the front over Fulford School playing fields.
The property has been thoughtfully renovated and now provides stylish open-plan accommodation in a superb location within easy reach of York city centre, the outer ring road, and the A19 (south).
Situated on a quiet lane in the highly sought-after Fulford Village area of York, this beautifully updated and extended 4/5-bedroom detached house offers spacious, contemporary living with lawned gardens and open views to the front over Fulford School playing fields.
The property has been thoughtfully renovated and now provides stylish open-plan accommodation in a superb location, within easy reach of York city centre, the outer ring road, and the A19 (south).
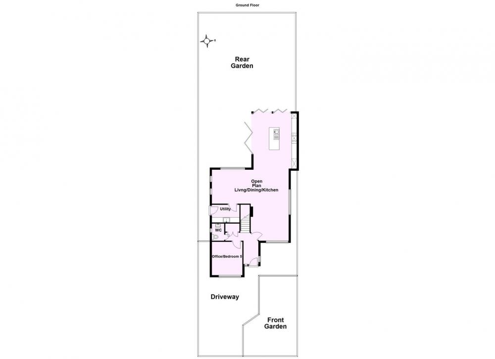
A generous brick-set driveway leads to the front entrance, opening into a welcoming reception hall with stairs to the first floor and doors to a versatile reception room (ideal as a fifth bedroom or home office), a walk-in storage cupboard, and a ground floor WC.
To the rear, the open-plan living and dining space flows seamlessly into a striking contemporary kitchen and additional sitting area, featuring bi-fold doors that open onto the patio and rear garden, perfect for modern family living and entertaining.
The kitchen is fitted with an impressive range of units including an eye-level oven, gas hob with extractor, and space for an American-style fridge freezer. A long breakfast bar divides the kitchen and living areas, offering extra storage and a second sink, creating a practical and social layout.
Upstairs there are three generous double bedrooms, a further single bedroom, and a stylish family bathroom with a freestanding bath and separate shower cubicle.
Outside, the property enjoys a lawned front garden and a private rear garden, mainly laid to lawn with a large patio area ideal for alfresco dining. The garden is enclosed by characterful old brick walls and fencing, creating a peaceful and secluded feel.
This superb home combines modern design with character and comfort and is offered for sale with no onward chain.
GENERAL REMARKS
FIXTURES AND FITTINGS
All fixtures and fittings are specifically excluded from the sale unless they are mentioned in the particulars of sale.
LOCATION
The property is set in an ideal and quiet location yet lies close to the A19 with local shops and services within Fulford Village and easy access to York city centre.
SERVICES
Mains supplies of water, electricity and drainage. Gas fired central heating.
LOCAL AUTHORITY YORK
City of York Council, West Offices, Station Rise, York, YO1 6GA. Telephone 01904 551550.
OFFER PROCEDURE
Before contacting a Building Society, Bank or Solicitor you should make your offer to the office dealing with the sale, as any delay may result in the sale being agreed to another purchaser, thus incurring unnecessary costs. Under the Estate Agency Act 1991, you will be required to provide us with financial information in order to verify your position, before we can recommend your offer to the vendor. We will also require proof of identification in order to adhere to Money Laundering Regulations.
VIEWING MICKLEGATE
All viewing is strictly by prior appointment with the sole selling agents, Hudson Moody. Please contact our offices at 58, Micklegate, York, YO1 6LF. Telephone (01904) 650 650.
ANTI MONEY LAUNDERING COMPLIANCE
We are legally required to conduct Anti-Money Laundering (AML) checks on all purchasers and sellers. These checks become mandatory once a seller accepts an offer on a property (subject to contract).
AML checks are valid for six months from the date of completion. If your transaction does not proceed and you submit an offer on another property more than six months later, or if your existing AML check is more than six months old at the time of a new offer, you will be required to complete and pay for a new check.
We appoint HIPLA as our compliance partner to carry out these checks on our behalf. Once your offer has been accepted (subject to contract), HIPLA will contact you directly to complete a secure electronic verification process.
A non-refundable fee of £30 + VAT per purchaser is payable for the AML check. This fee must be paid before we can issue the Memorandum of Sale to the solicitors. The fee is non-refundable in all circumstances.
Hudson Moody receives service credits from HIPLA which may be used against other services, in recognition of facilitating the checks and undertaking associated administrative compliance duties.
Loading... Please wait.
Loading... Please wait.