Scott Street, Bishopthorpe Road, York YO23 1NS
Guide Price £425,000
A beautifully presented two bedroom Victorian mid-terraced house with an attractive courtyard garden that leads out to a well maintained communal service lane.
South Bank and Bishopthorpe Road are known as the 'Notting Hill' of York with many awards for the best high street in the UK. Scott Street offers easy access to all local amenities with shops, restaurants, bars, parks, multiple excellent schools and York Racecourse all in walking distance.
South Bank and Bishopthorpe Road are known as the 'Notting Hill' of York with many awards for the best high street in the UK. Scott Street offers easy access to all local amenities with shops, restaurants, bars, parks, multiple excellent schools and York Racecourse all in walking distance.
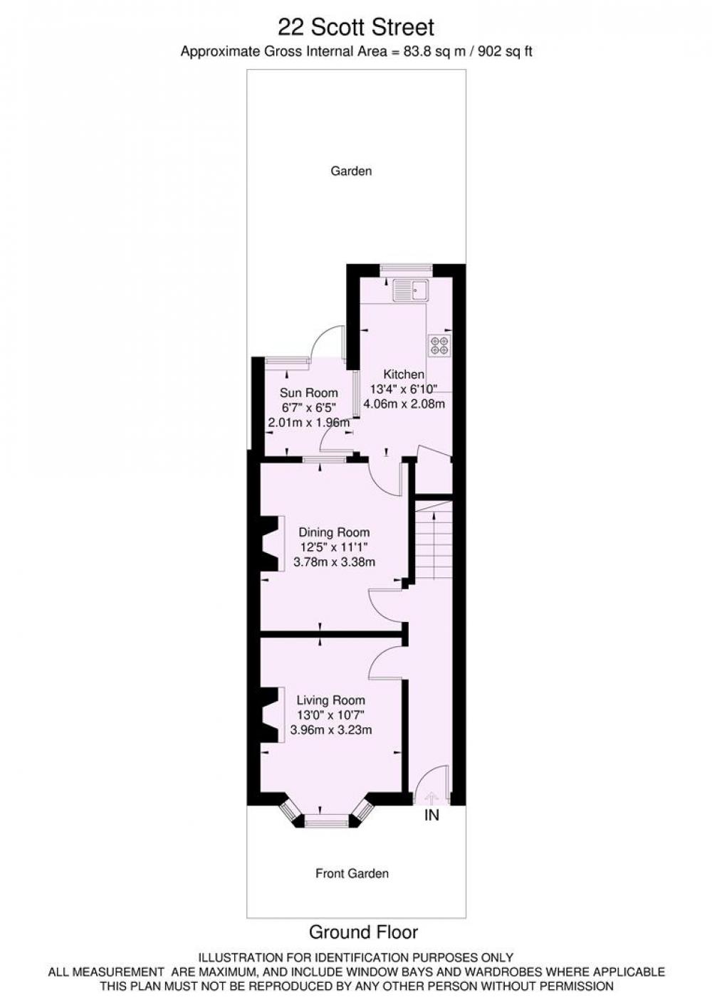
A small forecourt, which has been recently capped by a local stone mason with natural coping stones, brings you to the front door where you step into a hallway giving access firstly to the living room that features stripped and stained floorboards, a large bay window, an arched Victorian style feature fireplace with shelving and cupboards to one alcove. Next is the dining room, with engineered oak flooring, a similar fireplace, window into the sun room and a door that takes you through to the kitchen that provides an integral cooker, gas hob and extractor hood, together with space for a tall fridge/freezer and under counter plumbing for additional appliances. The sun room is a lovely room and has been decorated really tastefully. It is a great place to relax on a sunny day and looks out over the courtyard.
The staircase at the end of the entrance hall takes you to the first floor landing off which are the two good sized double bedrooms and the house bathroom with a free standing claw foot bath with hand held shower, a separate shower cubicle and white suite. There is also access to the fully boarded loft which has a Velux window, flooding the space with natural light.
The charming flagged courtyard garden is currently well stocked with a number of potted plants and provides valuable outside alfresco dining space.
GENERAL REMARKS
VIEWING
All viewing is strictly by prior appointment with the sole selling agents, Hudson Moody. Please contact our offices at 58, Micklegate, York, YO1 6LF.
FIXTURES AND FITTINGS
All fixtures and fittings are specifically excluded from the sale unless they are mentioned in the particulars of sale.
LOCATION
Situated in an enviable location close to all the local shops and services on Bishy' Road. Pleasant riverside walks close by in Rowntrees Park and easy access to York city centre and railway station either on foot or by bus/car.
SERVICES
Mains supplies of water, electricity and drainage. Gas fired central heating.
LOCAL AUTHORITY YORK
City of York Council, West Offices, Station Rise, York, YO1 6GA. Telephone 01904 551550.
OFFER PROCEDURE
Before contacting a Building Society, Bank or Solicitor you should make your offer to the office dealing with the sale, as any delay may result in the sale being agreed to another purchaser, thus incurring unnecessary costs. Under the Estate Agency Act 1991, you will be required to provide us with financial information in order to verify your position, before we can recommend your offer to the vendor. We will also require proof of identification in order to adhere to Money Laundering Regulations.
ANTI MONEY LAUNDERING COMPLIANCE
We are legally required to conduct Anti-Money Laundering (AML) checks on all purchasers and sellers. These checks become mandatory once a seller accepts an offer on a property (subject to contract).
AML checks are valid for six months from the date of completion. If your transaction does not proceed and you submit an offer on another property more than six months later, or if your existing AML check is more than six months old at the time of a new offer, you will be required to complete and pay for a new check.
We appoint HIPLA as our compliance partner to carry out these checks on our behalf. Once your offer has been accepted (subject to contract), HIPLA will contact you directly to complete a secure electronic verification process.
A non-refundable fee of £30 + VAT per purchaser is payable for the AML check. This fee must be paid before we can issue the Memorandum of Sale to the solicitors. The fee is non-refundable in all circumstances.
Hudson Moody receives service credits from HIPLA which may be used against other services, in recognition of facilitating the checks and undertaking associated administrative compliance duties.
Loading... Please wait.
Loading... Please wait.