Sherwood Grove, Acomb, York, YO26 5RD
Offers Over £500,000
An attractive and SPACIOUS DETACHED BUNGALOW with open country views to the front and situated in a convenient location near Acomb.
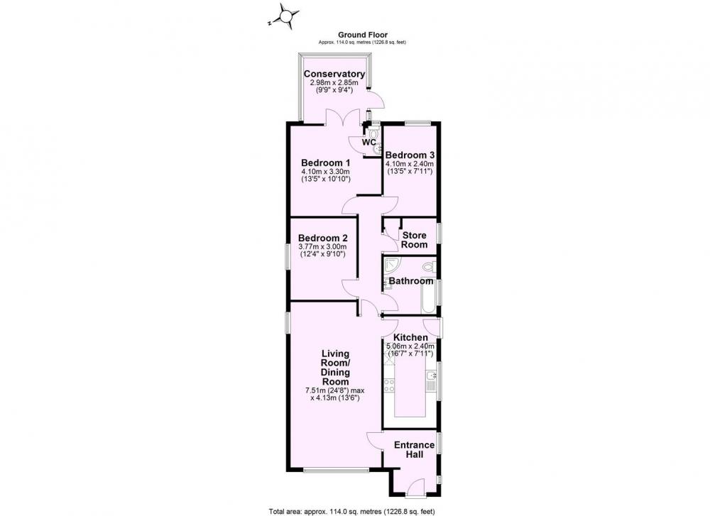
The bungalow offers three bedrooms, living room, conservatory, and well maintained gardens, garage and off street parking.
This beautifully presented and recently updated bungalow offers generous parking to both the front and side, with convenient access to the garage located at the rear.
The entrance hall leads directly into a spacious open-plan living and dining area. A large front-facing window and an additional side window provide excellent natural light throughout the room.
Adjacent to the living area is a superbly appointed kitchen, featuring a contemporary range of fitted units and integrated appliances, including an oven, built-in microwave, and separate gas hob.
A corridor from the main living space provides access to the stylish family bathroom, which boasts both a bathtub and a separate shower cubicle. Further along is a walk-in storage cupboard and two generously sized double bedrooms. At the rear of the bungalow, a third bedroom is currently configured as a second reception room or bar area. This flexible space includes a separate WC and opens through French doors into a spacious conservatory — perfect for relaxing or entertaining.
Externally, the home is complemented by a fully enclosed, beautifully maintained lawned garden. At the far end is a large patio area, ideal for outdoor dining or entertaining.
GENERAL REMARKS
VIEWING
All viewing is strictly by prior appointment with the sole selling agents, Hudson Moody. Please contact our offices at 58, Micklegate, York, YO1 6LF.
FIXTURES AND FITTINGS
All fixtures and fittings are specifically excluded from the sale unless they are mentioned in the particulars of sale.
LOCATION
The property is set in a quiet location close to Beckfield Lane and Acomb yet has panoramic country views to the front of the property.
A good selection of local shops and services are available in nearby Acomb village with York city centre and Clifton Moor Retail Park within a short drive.
The property is also conveniently placed for the outer ring road that feeds to the motorway network.
SERVICES
Mains supplies of water, electricity and drainage. Gas fired central heating.
LOCAL AUTHORITY YORK
City of York Council, West Offices, Station Rise, York, YO1 6GA. Telephone 01904 551550.
OFFER PROCEDURE
Before contacting a Building Society, Bank or Solicitor you should make your offer to the office dealing with the sale, as any delay may result in the sale being agreed to another purchaser, thus incurring unnecessary costs. Under the Estate Agency Act 1991, you will be required to provide us with financial information in order to verify your position, before we can recommend your offer to the vendor. We will also require proof of identification in order to adhere to Money Laundering Regulations.
ANTI MONEY LAUNDERING COMPLIANCE
We are legally required to conduct Anti-Money Laundering (AML) checks on all purchasers and sellers. These checks become mandatory once a seller accepts an offer on a property (subject to contract).
AML checks are valid for six months from the date of completion. If your transaction does not proceed and you submit an offer on another property more than six months later, or if your existing AML check is more than six months old at the time of a new offer, you will be required to complete and pay for a new check.
We appoint HIPLA as our compliance partner to carry out these checks on our behalf. Once your offer has been accepted (subject to contract), HIPLA will contact you directly to complete a secure electronic verification process.
A non-refundable fee of £30 + VAT per purchaser is payable for the AML check. This fee must be paid before we can issue the Memorandum of Sale to the solicitors. The fee is non-refundable in all circumstances.
Hudson Moody receives service credits from HIPLA which may be used against other services, in recognition of facilitating the checks and undertaking associated administrative compliance duties.
Loading... Please wait.
Loading... Please wait.