Springwood, Haxby, York, YO32 3YN
Guide Price £500,000
An immaculate, extended four double bedroom detached family home, having undergone a programme of refurbishment by the current owners to exacting standards. Built to the highly regarded 'Gloucester' design, the property is situated in a sought-after cul-de-sac position, offering convenient access to Haxby village with its wide ranging amenities, the outer ring road, Clifton Moor and Monks Cross.
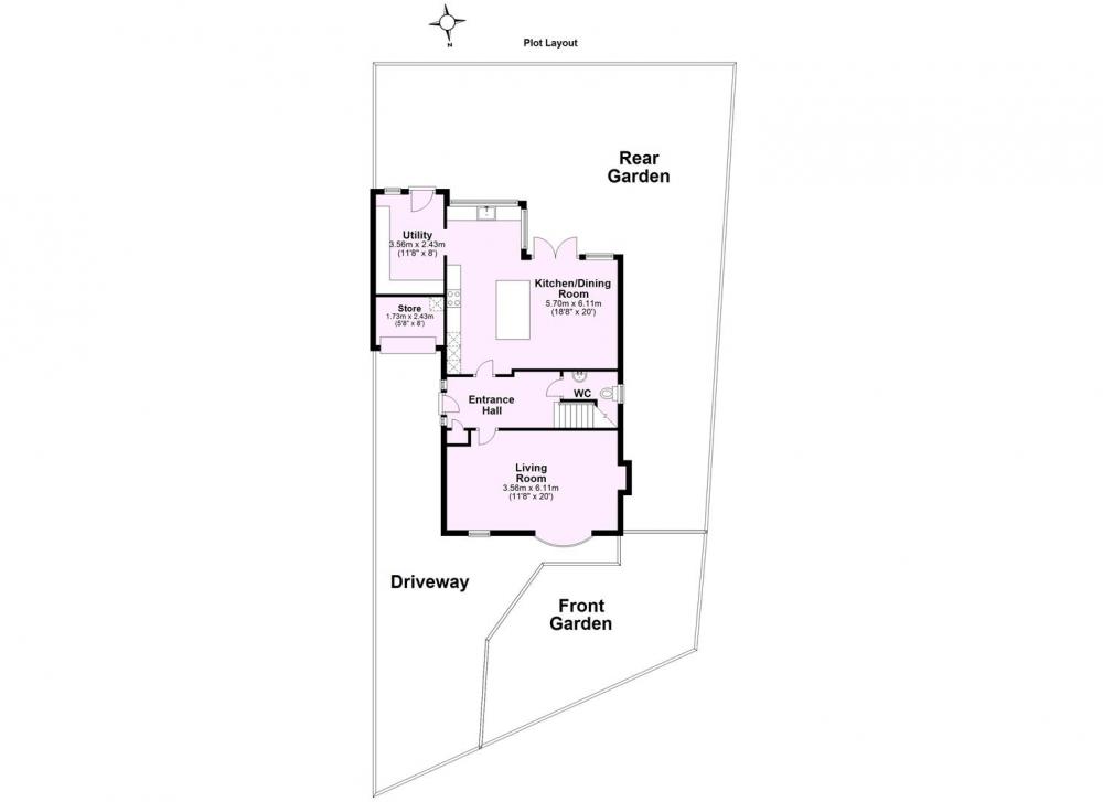
Offering generous and flexible living space throughout, this superb home has accommodation comprising: A reception hallway accessed via a Composite entrance door with glazed floor to ceiling windows either side, stairs to the first floor, storage cupboard and guest WC. The living room centres upon a feature remote control, log effect electric fire and has a large walk-in bay window and further window.
The modern open plan kitchen/dining/snug has a range of bespoke units with white quartz worktops, an inset five burner gas hob, with extractor hood over and electric double oven, a central island with breakfast bar and further integrated appliances, including a separate fridge & freezer, dishwasher, wine fridge and Quooker hot tap. The snug seating area has a feature floor to ceiling radiator and has double doors opening to the enclosed rear garden. A utility room is open from the kitchen featuring bespoke units, again with white quartz work tops, plumbing and space for a washing machine, dryer and a door leading to the rear garden.
The first floor landing serves four double bedrooms and a modern house bathroom, with shower over bath.
Outside, the property is approached by a block paved driveway, providing ample off road parking and leads to an attached garage/store with up and over door and power and light laid on. A side gate opens to enclosed side and south facing rear garden, with lawn area, large patio seating area and timber storage shed.
We strongly recommend an early viewing to fully appreciate this superb family home.
GENERAL REMARKS
VIEWING NORTH OF YORK
All viewing is strictly by prior appointment with the sole selling agents, Hudson Moody. Please contact our offices at 58, Micklegate, York, YO1 6LF or The Green, Poppleton, York, YO26 6DF. Telephone (01904) 600 000.
FIXTURES & FITTINGS
All fixtures and fittings are specifically excluded from the sale unless they are mentioned in the particulars of sale.
LOCATION
Conveniently situated near to all the shops and facilities available in Wigginton and Haxby and close to the city centre, outer ring road and A64 serving the motorway network.
SERVICES
Mains supplies of water, electricity and drainage. Gas fired central heating.
LOCAL AUTHORITY YORK
City of York Council, West Offices, Station Rise, York, YO1 6GA. Telephone 01904 551550.
ANTI MONEY LAUNDERING COMPLIANCE
We are legally required to conduct Anti-Money Laundering (AML) checks on all purchasers and sellers. These checks become mandatory once a seller accepts an offer on a property (subject to contract).
AML checks are valid for six months from the date of completion. If your transaction does not proceed and you submit an offer on another property more than six months later, or if your existing AML check is more than six months old at the time of a new offer, you will be required to complete and pay for a new check.
We appoint HIPLA as our compliance partner to carry out these checks on our behalf. Once your offer has been accepted (subject to contract), HIPLA will contact you directly to complete a secure electronic verification process.
A non-refundable fee of £30 + VAT per purchaser is payable for the AML check. This fee must be paid before we can issue the Memorandum of Sale to the solicitors. The fee is non-refundable in all circumstances.
Hudson Moody receives service credits from HIPLA which may be used against other services, in recognition of facilitating the checks and undertaking associated administrative compliance duties.
Loading... Please wait.
Loading... Please wait.