Stockton Lane, Heworth, York, YO31 1JJ
Offers Over £430,000
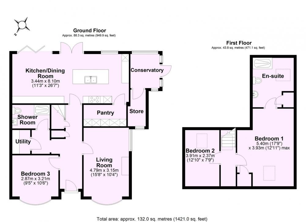
A spacious three bedroom detached dormer style bungalow, having undergone a programme of extension and refurbishment by the current owners to a high standard. With ample off-road parking for a number of vehicles, the property is conveniently placed to access York City Centre, the outer ring road and the A64.
Situated on Stockton Lane, arguably one of York's most sought after addresses and with views over fields to the front, this superb family home offers generous and flexible living space throughout.
The front door opens to a welcoming hallway, with stairs leading to the first floor and serves all ground floor rooms. Straight ahead is the open plan kitchen/dining/living space, with quality fitted units, a central island and breakfast bar. Integrated appliances include a fridge/freezer, dishwasher, ceramic hob with extractor hood over and electric double oven. Bi-folding doors and French doors open to the rear garden and there is also a large walk-in pantry with floor to ceiling units. To the front is a bay fronted lounge with dual aspect windows, a bedroom with bay window, a utility room and luxury shower room.
A first floor landing provides access to the main bedroom with en-suite shower room and a further bedroom.
Outside, there is ample off-road parking for a number of vehicles to the front. Side gated access opens to an enclosed, rear gravelled garden, with timber shed, fencing to perimeters. To finish, there is a conservatory and store room.
We strongly recommend an early viewing to appreciate the accommodation on offer.
GENERAL REMARKS
SERVICES
Mains supplies of water, electricity and drainage. Gas fired central heating.
LOCATION
Situated on Stockton Lane in the Heworth area, lying to the North East of York City centre.
FIXTURES & FITTINGS
All fixtures and fittings are specifically excluded from the sale unless they are mentioned in the particulars of sale.
LOCAL AUTHORITY YORK
City of York Council, West Offices, Station Rise, York, YO1 6GA. Telephone 01904 551550.
OFFER PROCEDURE
Before contacting a Building Society, Bank or Solicitor you should make your offer to the office dealing with the sale, as any delay may result in the sale being agreed to another purchaser, thus incurring unnecessary costs. Under the Estate Agency Act 1991, you will be required to provide us with financial information in order to verify your position, before we can recommend your offer to the vendor. We will also require proof of identification in order to adhere to Money Laundering Regulations.
ANTI MONEY LAUNDERING COMPLIANCE
We are legally required to conduct Anti-Money Laundering (AML) checks on all purchasers and sellers. These checks become mandatory once a seller accepts an offer on a property (subject to contract).
AML checks are valid for six months from the date of completion. If your transaction does not proceed and you submit an offer on another property more than six months later, or if your existing AML check is more than six months old at the time of a new offer, you will be required to complete and pay for a new check.
We appoint HIPLA as our compliance partner to carry out these checks on our behalf. Once your offer has been accepted (subject to contract), HIPLA will contact you directly to complete a secure electronic verification process.
A non-refundable fee of £30 + VAT per purchaser is payable for the AML check. This fee must be paid before we can issue the Memorandum of Sale to the solicitors. The fee is non-refundable in all circumstances.
Hudson Moody receives service credits from HIPLA which may be used against other services, in recognition of facilitating the checks and undertaking associated administrative compliance duties.
Loading... Please wait.
Loading... Please wait.