Strensall Road, Earswick, York, YO32 9SW
Offers In Excess Of £800,000
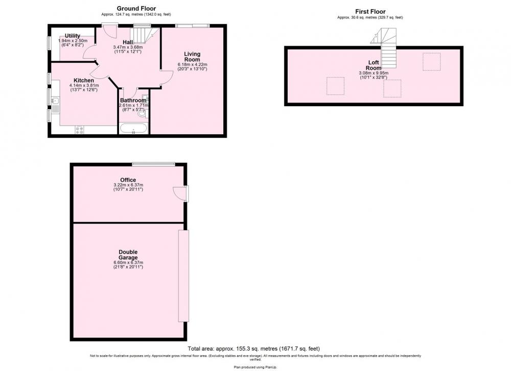
238 Strensall Road is a unique three double bedroom detached family home, set within approx. THREE ACRES of land, with a separate, fully self-contained one bedroom barn conversion, a double garage with attached office space, parking for a number of vehicles and a paddock to the rear of just under 2 acres.
Situated between the villages of Earswick and Strensall, this amazing property offers convenient access to local amenities, the outer ring road, the A64 and York City Centre.
Set back from the main road, this family home is presented to a high standard and is accessed via a wooden door with glazed panel, opening to the hallway, with stairs leading to the first floor. The bay fronted living room has dual aspect windows and centres upon a feature fireplace with stone hearth and log burning stove. Double doors open to the most amazing, modern, open plan kitchen / dining / living space, with a central island, integrated wine fridge and dishwasher as well as a range cooker. A range of windows, sky lights and glazed sliding doors, allows light to flood into the room and makes it an ideal place for entertaining. Leading just off the kitchen is a rear hallway or study area, with a guest WC, a door leading to the rear garden and a utility room completes the ground floor accommodation.
A first floor landing serves three double bedrooms and a house bathroom with shower over bath. Two of the bedrooms benefit from a shower and wash basin.
Externally, the property is set back from the road and has mature trees providing a degree of privacy. A walled front garden is laid to lawn. A gravelled driveway and wooden security gate leads to an attractive, enclosed, mature private garden, laid mainly to lawn, with a patio seating area, a sun terrace and fish pond with water feature.
Beyond the private garden is the triple garage with electric roller shutter doors and the attached office space featuring a wood burning stove and private entrance door.
The separate self-contained barn conversion has an entrance hallway, lounge with wood burning stove, kitchen, bathroom, utility room and stairs leading to a large first floor bedroom area.
The driveway continues and leads to a large parking area with orchard and old piggery buildings. Beyond this is a private woodland and the fully fenced, paddock / grass field, with wildlife pond and superb views over countryside.
This really is a unique property and we strongly recommend an early viewing.
GENERAL REMARKS
VIEWING NORTH OF YORK
All viewing is strictly by prior appointment with the sole selling agents, Hudson Moody. Please contact our offices at 58, Micklegate, York, YO1 6LF or The Green Poppleton, York, YO26 6DF. Telephone (01904) 600 000.
FIXTURES & FITTINGS
All fixtures and fittings are specifically excluded from the sale unless they are mentioned in the particulars of sale.
LOCATION
The property is situated between Earswick and Strensall and provides convenient access to local amenities, to the outer ring road, the A64 and York City Centre.
SERVICES
Mains supply of water, electricity, gas central heating and septic tank.
LOCAL AUTHORITY YORK
City of York Council, West Offices, Station Rise, York, YO1 6GA. Telephone 01904 551550.
OFFER PROCEDURE
Before contacting a Building Society, Bank or Solicitor you should make your offer to the office dealing with the sale, as any delay may result in the sale being agreed to another purchaser, thus incurring unnecessary costs. Under the Estate Agency Act 1991, you will be required to provide us with financial information in order to verify your position, before we can recommend your offer to the vendor. We will also require proof of identification in order to adhere to Money Laundering Regulations.
ANTI MONEY LAUNDERING COMPLIANCE
We are legally required to conduct Anti-Money Laundering (AML) checks on all purchasers and sellers. These checks become mandatory once a seller accepts an offer on a property (subject to contract).
AML checks are valid for six months from the date of completion. If your transaction does not proceed and you submit an offer on another property more than six months later, or if your existing AML check is more than six months old at the time of a new offer, you will be required to complete and pay for a new check.
We appoint HIPLA as our compliance partner to carry out these checks on our behalf. Once your offer has been accepted (subject to contract), HIPLA will contact you directly to complete a secure electronic verification process.
A non-refundable fee of £30 + VAT per purchaser is payable for the AML check. This fee must be paid before we can issue the Memorandum of Sale to the solicitors. The fee is non-refundable in all circumstances.
Hudson Moody receives service credits from HIPLA which may be used against other services, in recognition of facilitating the checks and undertaking associated administrative compliance duties.
Loading... Please wait.
Loading... Please wait.