Temple Garth, Copmanthorpe, York YO23 3TF
Guide Price £895,000
***Offered with No Chain***
Situated in the highly sought after village of Copmanthorpe, this exceptional four bedroom, three bathroom detached home offers an outstanding blend of space, style, and practicality, perfectly suited to modern family living.
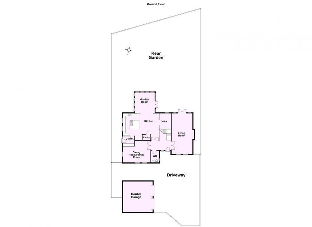
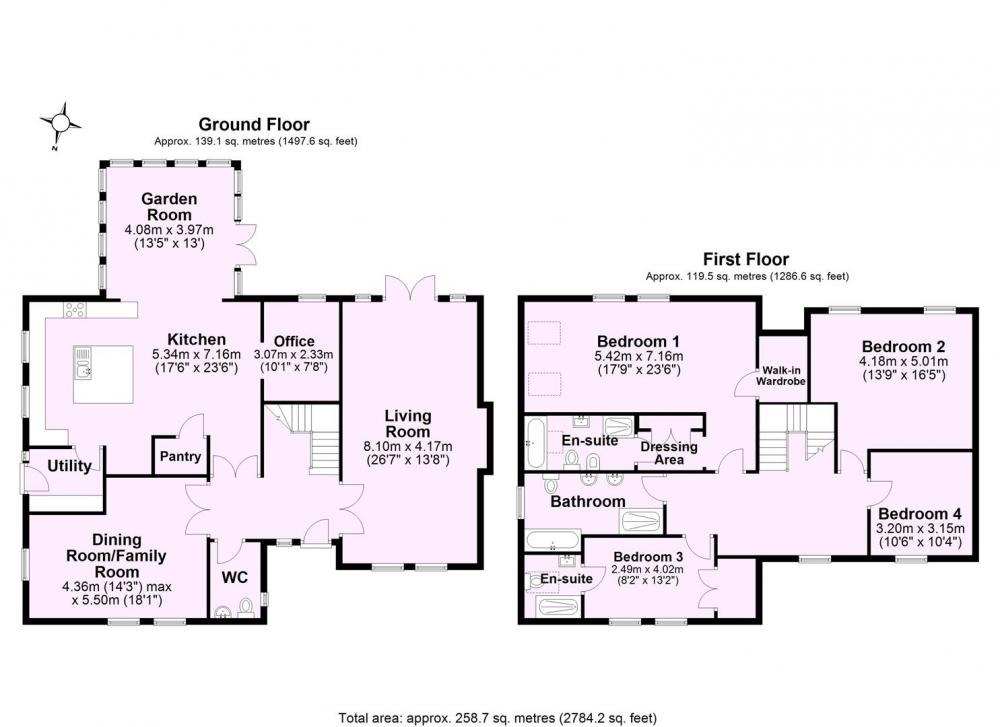
From the moment you step into the generous entrance hall, the property impresses with its immaculate finish and thoughtfully designed layout. The ground floor boasts three versatile reception rooms, providing ample space for both entertaining and everyday living, alongside a separate study. The hub of the house is the stunning open plan Kitchen diner, boasting a modern shaker style kitchen, granite work tops, Range Master cooker and tiled flooring.
Upstairs, the property continues to deliver with four well-proportioned bedrooms and three beautifully presented bath/shower rooms, all centred around a spacious and light-filled landing area. The home is finished to an exceptional standard throughout, offering a true “move-in ready” experience.
Externally, the property benefits from a double garage and extensive driveway parking. To the rear, the house enjoys a private and tranquil setting, backing directly onto open fields creating a peaceful outlook and a wonderful sense of seclusion.
The home features wet underfloor heating across the ground floor with radiators on the first floor and for a house of this size, is very economical to run.
GENERAL REMARKS
FIXTURES AND FITTINGS
All fixtures and fittings are specifically excluded from the sale unless they are mentioned in the particulars of sale.
SERVICES
Mains supplies of water, electricity and drainage. Gas fired central heating.
LOCAL AUTHORITY YORK
City of York Council, West Offices, Station Rise, York, YO1 6GA. Telephone 01904 551550.
VIEWING MICKLEGATE
All viewing is strictly by prior appointment with the sole selling agents, Hudson Moody. Please contact our offices at 58, Micklegate, York, YO1 6LF. Telephone (01904) 650 650.
OFFER PROCEDURE
Before contacting a Building Society, Bank or Solicitor you should make your offer to the office dealing with the sale, as any delay may result in the sale being agreed to another purchaser, thus incurring unnecessary costs. Under the Estate Agency Act 1991, you will be required to provide us with financial information in order to verify your position, before we can recommend your offer to the vendor. We will also require proof of identification in order to adhere to Money Laundering Regulations.
ANTI MONEY LAUNDERING COMPLIANCE
We are legally required to conduct Anti-Money Laundering (AML) checks on all purchasers and sellers. These checks become mandatory once a seller accepts an offer on a property (subject to contract).
AML checks are valid for six months from the date of completion. If your transaction does not proceed and you submit an offer on another property more than six months later, or if your existing AML check is more than six months old at the time of a new offer, you will be required to complete and pay for a new check.
We appoint HIPLA as our compliance partner to carry out these checks on our behalf. Once your offer has been accepted (subject to contract), HIPLA will contact you directly to complete a secure electronic verification process.
A non-refundable fee of £30 + VAT per purchaser is payable for the AML check. This fee must be paid before we can issue the Memorandum of Sale to the solicitors. The fee is non-refundable in all circumstances.
Hudson Moody receives service credits from HIPLA which may be used against other services, in recognition of facilitating the checks and undertaking associated administrative compliance duties.
Loading... Please wait.
Loading... Please wait.