Tower Place, York, YO1 9RZ
Guide Price £565,000
A beautiful period home, offering exceptional kerb appeal, set within an enviable and idyllic location within the heart of the city centre.
A rare opportunity to purchase a beautiful grade II listed home, which combines an idyllic and peaceful location with all the convenience of city centre living. Nestled behind ancient city walls amongst a secluded row of only 8 properties, this charming, picture perfect home boasts a stunning cottage garden to the front affording views over Tower Gardens. 
Set back from the hustle and bustle of the main street, the property is accessed via an iron gate just opposite Clifford's Tower. A pleasant stroll through this private development evokes an immediate sense of tranquillity as you approach the property and its sunny, landscaped front garden. 
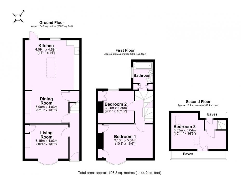
Upon entering the home, the entrance hall leads firstly to the beautifully appointed living room with a classical fireplace with real flame gas fire and bow sash window allowing pretty views across the garden. This bright and elegant room also lends itself to a study or potential ground floor bedroom if required.
The split level, open plan kitchen dining and sitting room is situated to the rear. An excellent entertaining space balancing the comfort of a beautiful sitting area, with open fire, with ample space for dining and modern shaker style kitchen units. From the Kitchen, a rear door opens out onto the delightful walled courtyard garden. 
To the first floor there are two generous double bedrooms and the house shower room. A second staircase leads to the loft conversion with double bedroom and ample eaves storage 
The property has gas fired central heating throughout.  
Residents parking is permitted on South Esplanade conveniently located within 200 metres of the property. 
In summary, an exceptional home, offering spacious accommodation, pleasant riverside walks and a wealth of amenities on the doorstep, all set within a stunning location. In addition, the property also benefits from having no onward chain. Viewing is highly recommended
GENERAL REMARKS
LOCATION
Tucked away on Tower Place opposite Clifford's Tower and overlooking Tower Gardens. Set within a secluded development of 8 period homes.
FIXTURES AND FITTINGS
All fixtures and fittings are specifically excluded from the sale unless they are mentioned in the particulars of sale.
LOCAL AUTHORITY YORK
City of York Council, West Offices, Station Rise, York, YO1 6GA. Telephone 01904 551550.
VIEWING MICKLEGATE
All viewing is strictly by prior appointment with the sole selling agents, Hudson Moody. Please contact our offices at 58, Micklegate, York, YO1 6LF. Telephone (01904) 650 650.
OFFER PROCEDURE
Before contacting a Building Society, Bank or Solicitor you should make your offer to the office dealing with the sale, as any delay may result in the sale being agreed to another purchaser, thus incurring unnecessary costs. Under the Estate Agency Act 1991, you will be required to provide us with financial information in order to verify your position, before we can recommend your offer to the vendor. We will also require proof of identification in order to adhere to Money Laundering Regulations.
						                                
						                            Loading... Please wait.
Loading... Please wait.