Ullswater, Woodthorpe, York YO24 2RS
Offers Over £375,000
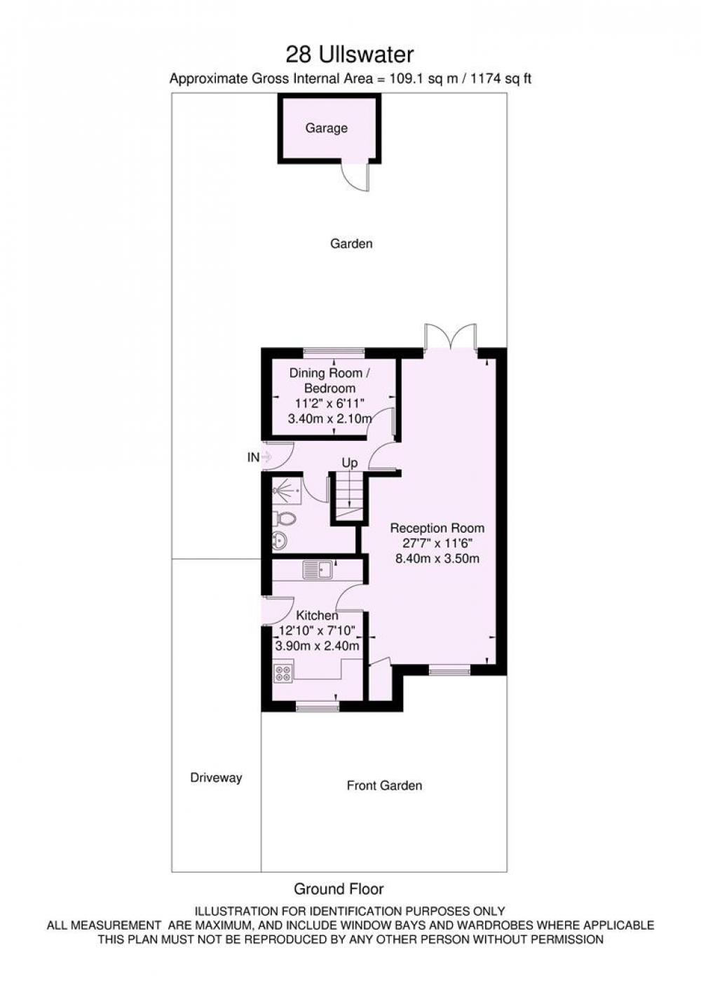
Set within the popular Woodthorpe area of York you will find this spacious and newly renovated semi-detached chalet style house that offers four first floor bedrooms and a versatile dining room/ fifth bedroom.
This 'ready to move into' property has been recently renovated to include a re-wire, re-plumb with new heating system, new Kitchen, bathrooms, flooring throughout, mostly new external windows and doors and is decorated in contemporary colours. The property also enjoys a pleasant, predominantly lawned, rear garden and single garage.
A neat frontage offers immediate kerb appeal and enjoys a lawn with off road parking to the side for two vehicles. The side entrance takes you straight into the kitchen that features a good range of white fronted units with integrated oven and induction hob with extractor over, a small breakfast bar, fridge freezer and an additional large cupboard housing the boiler.
From the kitchen you step into the 27ft living room with dining area boasting LVT flooring throughout and French doors giving access to the rear garden. A further door leads into a small lobby with additional side door to the rear garden, a ground floor shower room and the additional versatile room that could be a dining room or additional bedroom.
Stairs take you to the first floor where you will find three double bedrooms, one with fitted a cupboard and a further single bedroom which is currently designed as an office. The house bathroom serves all four bedrooms and provides a white suite with shower and screen over the bath.
To the rear of the house is a manageable lawned garden with two patio areas, a selection of attractive shrubs and the garage.
GENERAL REMARKS
VIEWING
All viewing is strictly by prior appointment with the sole selling agents, Hudson Moody. Please contact our offices at 58, Micklegate, York, YO1 6LF.
FIXTURES AND FITTINGS
All fixtures and fittings are specifically excluded from the sale unless they are mentioned in the particulars of sale.
SERVICES
Mains supplies of water, electricity and drainage. Gas fired central heating.
LOCATION
The property is set in a quiet area of Woodthorpe, the area provides excellent access to York and the A64 bypass that feeds to the motorway network. There are a good range of local shops and services nearby in Acomb village together with a large Tesco Store and Park and Ride Service to the city centre along Tadcaster Road.
LOCAL AUTHORITY YORK
City of York Council, West Offices, Station Rise, York, YO1 6GA. Telephone 01904 551550.
OFFER PROCEDURE
Before contacting a Building Society, Bank or Solicitor you should make your offer to the office dealing with the sale, as any delay may result in the sale being agreed to another purchaser, thus incurring unnecessary costs. Under the Estate Agency Act 1991, you will be required to provide us with financial information in order to verify your position, before we can recommend your offer to the vendor. We will also require proof of identification in order to adhere to Money Laundering Regulations.
Loading... Please wait.
Loading... Please wait.