Water Lane, Dunnington, York YO19 5NP
Price £325,000
***£10,000 allowance towards deposit*** An IMMACULATELY PRESENTED property; well positioned within an ATTRACTIVE ROAD in the highly regarded village of Dunnington ***VIEWING STRONGLY RECOMMENDED***
GENERAL REMARKS
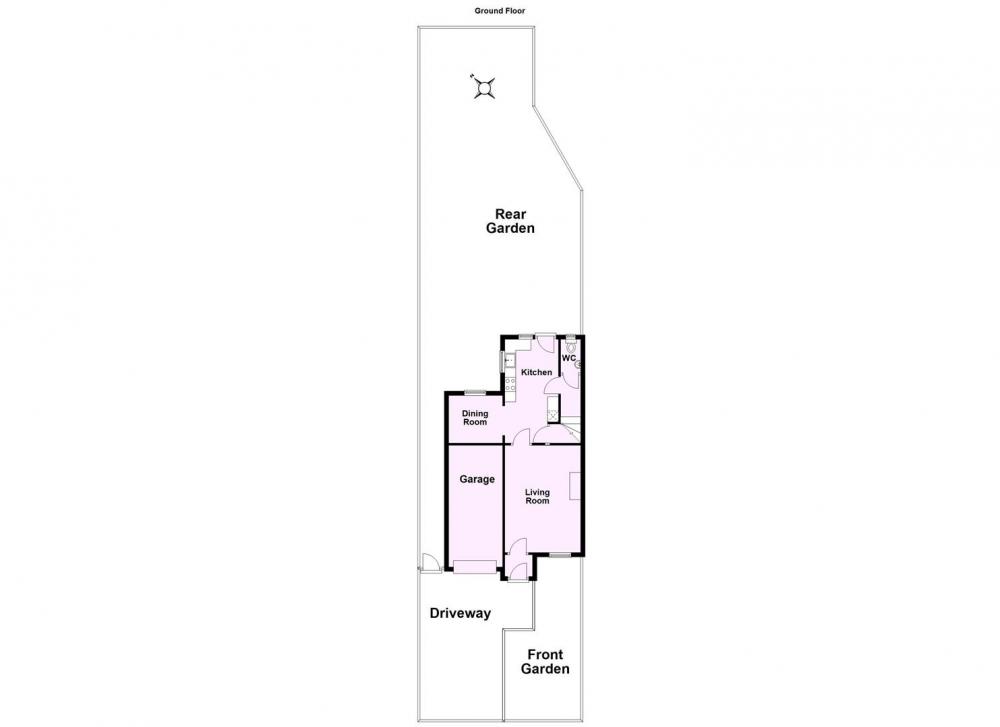
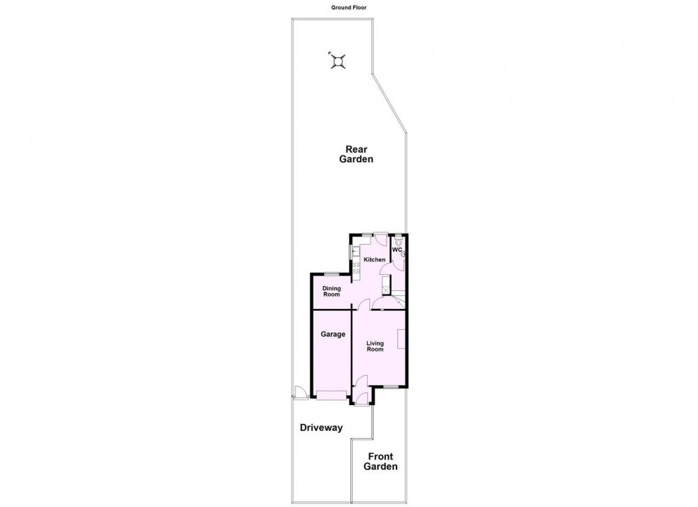
This immaculately presented property is approached by a welcoming front storm porch which leads into a good sized, noticeably light living room which incorporates an attractive fireplace with inset decorative tiles, plus a fitted bookcase with storage. To the rear of the property is an impressive modern kitchen newly fitted in 2023 which includes: a range of fitted Indigo blue units and cream quartz style worktops. Integral appliances include a cooker with gas hob and extractor, NEFF dishwasher, sunken sink and space and plumbing for further a washing machine and dishwasher. Useful under-stairs pantry. Garden access. Adjacent to the kitchen is a lovely dining room with tiled floor which flows through from the kitchen plus a window enjoying rear garden views. Ground floor WC.
First Floor: three bedrooms plus a modern family bathroom.
Externally: the property is approached via a block paved driveway which leads up to an attached single garage and pedestrian side gate. There is a landspaced front garden which well stocked shrubs and plants with gravel surround. To the rear is a lovely secluded lawned garden enclosed by a combination of tall hedging and timber fenced boundaries; flanked within by well stocked beds and paved brick path way that leads to a rear raised patio to catch the evening sun.
In summary: a versatile property likely to appeal to buyers both up and downsizing in addition to single parents.
VIEWING
All viewing is strictly by prior appointment with the sole selling agents, Hudson Moody. Please contact our personal agent Alex McClean.
LOCATION
Dunnington is situated around 4 miles to the east of York City. The village is very popular and has a great community spirit with many local activities and amenities including: the Sports Club (cricket, football, squash, tennis and bowls teams), Scouts hut, pub, church and a well-equipped play park with picnic area. There are a good range of local shops: cafe, bakers, Costcutter (including Post office), an award winning Florist, newsagent and interior design studio. There are also two hairdressers, a doctors surgery and chemist plus sought after village Primary School. Fulford school catchment. Local village walks are in Hagg Wood located on the eastern edge of the village plus and cycle paths (National Cycle Network Route 66)
The property is conveniently located a short walk to the centre of the village and well placed for local amenities. Regular bus services operate from the village to the City of York and surrounding areas.
AMENITIES
*gas fired central heating
*uPVC double glazed windows
*mains drainage
LOCAL AUTHORITY
City of York Council, West Offices, Station Rise, York, YO1 6GA.
OFFER PROCEDURE
Before contacting a Building Society, Bank or Solicitor you should make your offer to the office dealing with the sale, as any delay may result in the sale being agreed to another purchaser, thus incurring unnecessary costs. Under the Estate Agency Act 1991, you will be required to provide us with financial information in order to verify your position, before we can recommend your offer to the vendor. We will also require proof of identification in order to adhere to Money Laundering Regulations.
Loading... Please wait.
Loading... Please wait.