Westminster Road, Clifton, York, YO30 6LZ
Offers In Excess Of £550,000
An attractive, and spacious four bedroom semi detached home. Situated on the highly desirable Westminster Road, in the Clifton area of York.
This lovely semi detached home boasts traditional features such as high ceilings, bay fronted windows and original doors. Well presented throughout it offers an open plan kitchen, dining and garden room, loft conversion and pleasant rear garden.
Located on Westminster Road, in Clifton. A leafy, sought after residential area only a 20 minute walk of The Minster. It is ideally placed to provide excellent commuter links and lies within walking distance of highly regarded schools including St Peters and Bootham School. Residents can also enjoy nearby riverside walks and cycle tracks.
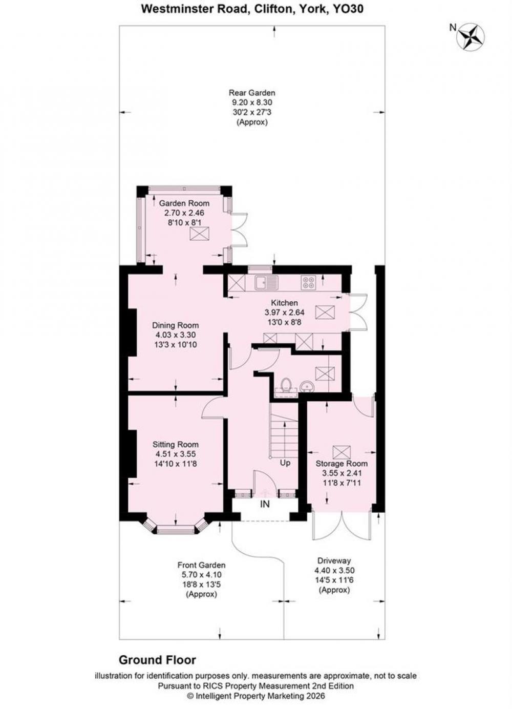
A welcoming entrance hall leads you into a beautifully appointed living room to the front, with gas fire, picture rails and bay window. The open plan family area is situated to the rear- a fantastic space for cooking, entertaining and relaxing in the garden room overlooking the garden. In addition, off the hallway, is a generously sized utility room with WC.
To the first floor are two generously sized double bedrooms, each with fitted storage and a third bedroom, currently used as a home office. Each served by the family bathroom with shower over bath. A bright and airy double bedroom lies in the loft conversion and offers two Velux windows, built in storage and en-suite shower room.
Externally, the low maintenance enjoys a seating area, and beautifully maintained planted borders . A driveway to the front, provides parking for one car and leads to a useful storage/boot room.
Westminster Road benefits from a residents permit parking scheme
Loading... Please wait.
Loading... Please wait.