Wetherby Road, York, YO26 5BS
Guide Price £450,000
Situated in an ideal location close to Acomb village and with easy access to York city centre is this well presented and surprisingly spacious four bedroom semi-detached family home.
The house offers modern open plan living accommodation with a separate sitting room to the ground floor, three bedrooms, house bathroom and a generous master bedroom with en-suite on the top floor.
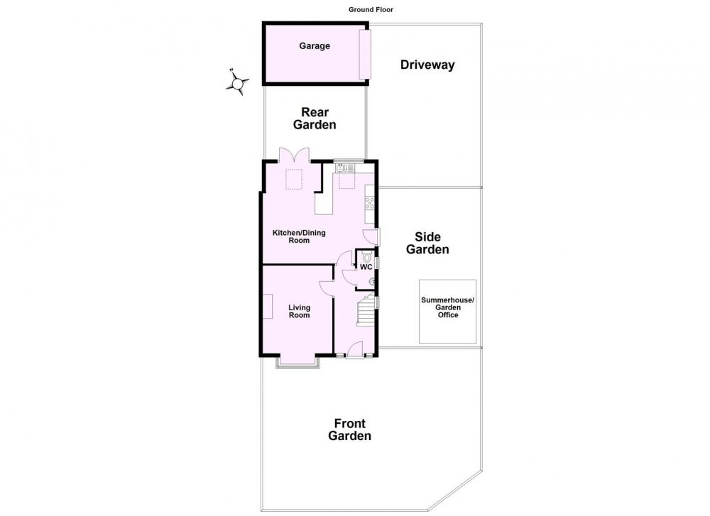
A lawned front garden leads to the property where you step into a good sized reception hall with ground floor WC off and staircase to the first floor. To the side of the reception hall is the spacious living room offering a wide box bay window to the front and a modern wall mounted electric fire providing a focal point to the room. Returning to the hallway you then enter the impressive open plan dining kitchen that is semi-divided by a breakfast bar. The bright and well fitted kitchen has a range of white fronted units and space for free standing appliances. The dining area has ample space for a large dining table and a small bright sitting area with a sky light and French doors opening to the rear garden.
The first floor offers a master bedroom and en-suite shower, a second double bedroom and a single bedroom, together with the house bathroom, whilst on the top floor is the generous master bedroom with en-suite shower room.
A garage and driveway stand at the rear of the house where there is also a small lawned garden, whilst to the side is a further lawned area and a garden studio or office.
GENERAL REMARKS
VIEWING
All viewing is strictly by prior appointment with the sole selling agents, Hudson Moody. Please contact our offices at 58, Micklegate, York, YO1 6LF.
FIXTURES AND FITTINGS
All fixtures and fittings are specifically excluded from the sale unless they are mentioned in the particulars of sale.
LOCATION
The house stands in a particularly convenient location on the edge of Acomb village that offer an excellent range of local shops and services. It is also within easy reach of York city centre and the outer ring road that serves the motorway network.
SERVICES
Mains supplies of water, electricity and drainage. Gas fired central heating.
LOCAL AUTHORITY YORK
City of York Council, West Offices, Station Rise, York, YO1 6GA. Telephone 01904 551550.
OFFER PROCEDURE
Before contacting a Building Society, Bank or Solicitor you should make your offer to the office dealing with the sale, as any delay may result in the sale being agreed to another purchaser, thus incurring unnecessary costs. Under the Estate Agency Act 1991, you will be required to provide us with financial information in order to verify your position, before we can recommend your offer to the vendor. We will also require proof of identification in order to adhere to Money Laundering Regulations.
ANTI MONEY LAUNDERING COMPLIANCE
We are legally required to conduct Anti-Money Laundering (AML) checks on all purchasers and sellers. These checks become mandatory once a seller accepts an offer on a property (subject to contract).
AML checks are valid for six months from the date of completion. If your transaction does not proceed and you submit an offer on another property more than six months later, or if your existing AML check is more than six months old at the time of a new offer, you will be required to complete and pay for a new check.
We appoint HIPLA as our compliance partner to carry out these checks on our behalf. Once your offer has been accepted (subject to contract), HIPLA will contact you directly to complete a secure electronic verification process.
A non-refundable fee of £30 + VAT per purchaser is payable for the AML check. This fee must be paid before we can issue the Memorandum of Sale to the solicitors. The fee is non-refundable in all circumstances.
Hudson Moody receives service credits from HIPLA which may be used against other services, in recognition of facilitating the checks and undertaking associated administrative compliance duties.
Loading... Please wait.
Loading... Please wait.