Whinny Lane, Claxton, York, YO60 7RZ
Guide Price £325,000
OFFERED FOR SALE WITH NO ONWARD CHAIN.... Situated in the highly regarded semi-rural village of Claxton is this superb, extended two double bedroom detached bungalow, set within attractive gardens, a driveway providing ample off-road parking and overlooking the village green.
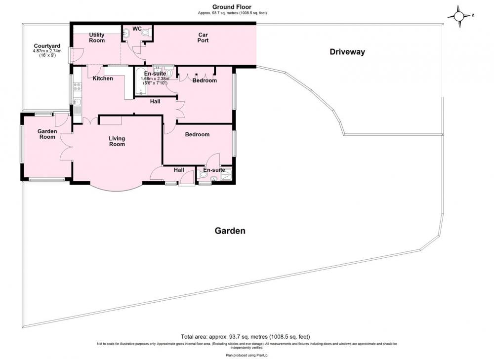
With over 1,000 sq ft of generous and flexible living space, the accommodation has been refurbished over the years to a high standard and an early viewing is highly recommended.
An entrance hallway is accessed via a door with glazed panels and opens to a bay fronted living room, with fire place and double doors opening to a garden room / study, with windows to three sides and a door leading to the enclosed rear garden.
Central to the property is a modern breakfast kitchen, benefitting from a range of integrated appliances which includes; a four burner hob, with oven under, a tall fridge freezer and a dishwasher. A door opens to a rear utility room, with plumbing and space for a washing machine and dryer, doors leading to both the car port and the rear garden and a guest WC.
An inner hallway leads to two double bedrooms, bedroom one has fitted wardrobes and an en-suite bathroom and bedroom two has fitted wardrobes and an en-suite shower room.
Externally, there are lawned gardens to the front and side, a side gravelled driveway provides off-road parking for multiple vehicles and leads to a car port. The enclosed rear low maintenance garden has side gated access and raised flower beds.
GENERAL REMARKS
LOCATION
Situated in the highly regarded village of Claxton, on the Main Street. 7 Miles from North East of York and offers convenient access to the amenities in Stamford Bridge and Monks Cross / Vangarde.
SERVICES
Mains Water and Drainage. LPG gas supply.
FIXTURES & FITTINGS
All fixtures and fittings are specifically excluded from the sale unless they are mentioned in the particulars of sale.
VIEWINGS
All viewing is strictly by prior appointment with the sole selling agents, Hudson Moody. Please contact our offices at 58, Micklegate, York, YO1 6LF. Telephone (01904) 650 650.
LOCAL AUTHORITY
Ryedale District Council, Ryedale House, Malton, North Yorkshire, YO17 7HH.
Telephone: 01653 600666.
OFFER PROCEDURE
Before contacting a Building Society, Bank or Solicitor you should make your offer to the office dealing with the sale, as any delay may result in the sale being agreed to another purchaser, thus incurring unnecessary costs. Under the Estate Agency Act 1991, you will be required to provide us with financial information in order to verify your position, before we can recommend your offer to the vendor. We will also require proof of identification in order to adhere to Money Laundering Regulations.
ANTI MONEY LAUNDERING COMPLIANCE
We are legally required to conduct Anti-Money Laundering (AML) checks on all purchasers and sellers. These checks become mandatory once a seller accepts an offer on a property (subject to contract).
AML checks are valid for six months from the date of completion. If your transaction does not proceed and you submit an offer on another property more than six months later, or if your existing AML check is more than six months old at the time of a new offer, you will be required to complete and pay for a new check.
We appoint HIPLA as our compliance partner to carry out these checks on our behalf. Once your offer has been accepted (subject to contract), HIPLA will contact you directly to complete a secure electronic verification process.
A non-refundable fee of £30 + VAT per purchaser is payable for the AML check. This fee must be paid before we can issue the Memorandum of Sale to the solicitors. The fee is non-refundable in all circumstances.
Hudson Moody receives service credits from HIPLA which may be used against other services, in recognition of facilitating the checks and undertaking associated administrative compliance duties.
Loading... Please wait.
Loading... Please wait.