Yarburgh Way, Badger Hill, York YO10 5HG
Guide Price £375,000
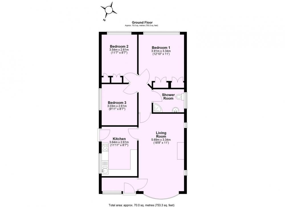
A spacious, well-presented bungalow, set on a large corner plot and situated in the popular Badger Hill area of York, within easy reach of the city centre and local amenities.
Set back behind an open lawned front garden the driveway leads up to the front entrance, which opens into a hallway, leading to the spacious living and dining room. This bright and welcoming space features a fireplace with living flame gas fire and a wide front-facing bay window, offering pleasant views across the garden and allowing plenty of natural light to flood the room.
The kitchen is fitted with a good range of wall and base units, complemented by marble-effect work surfaces. Integrated appliances include a cooker, gas hob and extractor hood, built-in ironing board and Bosch washer/dryer.
An internal hallway leads to two generous double bedrooms, both benefiting from fitted cupboards and outlooks to the rear of the property, along with a shower room. A further versatile bedroom provides excellent flexibility and could also be used as a dining room or home office
Externally, the property sits on a large plot and benefits from a spacious garden, with established shrub borders and a driveway with car port and single garage.
GENERAL REMARKS
VIEWING
All viewing is strictly by prior appointment with the sole selling agents, Hudson Moody. Please contact our offices at 58, Micklegate, York, YO1 6LF.
FIXTURES AND FITTINGS
All fixtures and fittings are specifically excluded from the sale unless they are mentioned in the particulars of sale.
LOCATION
Situated in a quiet residential street a short distance from Hull Road, the University campus in Heslington and within easy reach of the city centre. There are a small range of shops and services in the Badger Hill area with Monks Cross Retail Park a short drive away.
SERVICES
Mains supplies of water, electricity and drainage. Gas fired central heating.
LOCAL AUTHORITY YORK
City of York Council, West Offices, Station Rise, York, YO1 6GA. Telephone 01904 551550.
OFFER PROCEDURE
Before contacting a Building Society, Bank or Solicitor you should make your offer to the office dealing with the sale, as any delay may result in the sale being agreed to another purchaser, thus incurring unnecessary costs. Under the Estate Agency Act 1991, you will be required to provide us with financial information in order to verify your position, before we can recommend your offer to the vendor. We will also require proof of identification in order to adhere to Money Laundering Regulations.
Loading... Please wait.
Loading... Please wait.